4859 Coldwater Canyon Avenue #4

Sherman Oaks, CA 91423

$ 556,000

Price

2

Beds

2

Baths

865 Sq. Ft.

$643 / Sq. Ft.

25 Days On Market

Favorite

Share

Coldwater Creek Building

Have You Been Pre-Qualified? Start Now

Listing provided by agent Monica Rodriguez Valencia BRE# 02166923 at Luxury Collective.

Last Updated: 12 days ago

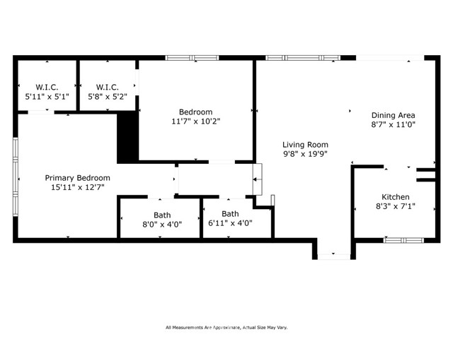
Welcome to this charming 2-bedroom, 2-bath end-unit condo tucked away in a quiet Cape Cod-style community in the heart of Sherman Oaks. As you step inside, you are greeted by hardwood-style floors and fresh custom roller window shades. The updated kitchen features modern white cabinetry, sleek quartz countertops, and a deep farmhouse-style sink. It opens beautifully to the dining area, where a large window offers views of lush greenery, creating a warm and stylish setting for everyday meals or entertaining guests. Both bathrooms have been updated with clean, modern finishes that complement the overall style of the home. Both bedrooms offer generous walk-in closets, and the unit features central air conditioning with a smart thermostat for personalized comfort. Thoughtfully updated and filled with natural light, this home is a peaceful retreat that still keeps you connected to the vibrant lifestyle of Sherman Oaks. Community amenities include a fitness room, recreation room, and conveniently located laundry just steps from the unit. Two tandem parking spaces are located in a secure garage with additional storage. Enjoy the unbeatable location just moments from Whole Foods, coffee shops, popular dining, Ventura Boulevard, and the 101 freeway. Whether you’re heading out for a canyon drive or walking to your favorite neighborhood spots, this home places you in the center of it all while still offering a serene and private setting. This is the lifestyle you’ve been waiting for. Don’t miss your opportunity to call this special property home.

Show More
Property Type Condominium
Lot Size 11,928 sq. ft.
Year Built 1975
MLS # SR25243145
Listing Type Closed
Heating Central
Cooling Central Air
Laundry Common Area, Community
Parking Assigned, Gated
Gated Community Yes

Payment Calculator

40% Complete (success)
80% Complete (danger)
20% Complete
80% Complete (danger)
60% Complete (warning)
Principal and Interest
Property Taxes
Homeowners' Insurance
HOA Dues
Mortgage Insurance
Image Calculator Icon Customize Calculations | Compare Mortgage Rates

Property Details for: 4859 Coldwater Canyon Avenue #4

Interior Features

Bathroom Information
  • 2 full baths
Laundry Information
  • Common Area
  • Community
Interior Features
  • Balcony
  • Living Room Balcony
Heating & Cooling
  • Central Air
  • Central

Parking / Garage, Multi-Unit Information, Location Details

Interior Information
  • Balcony
  • Living Room Balcony
Parking Information
  • Assigned
  • Gated
Community Features
  • Units in Complex (Total) 15

Exterior Features

Building Information
  • Total Floors: 3

Property / Lot Details

Property Features
  • Neighborhood
Lot Information
  • Lot Size (Sq. Ft) 11,928
Property Information
  • Attached
  • Tax Parcel Number: 2358021043

Recently Sold Homes Near 4859 Coldwater Canyon Avenue #4

Nearby Businesses

  • Grocery Stores
  • Drug Stores
  • Coffee Shops
  • Restaurants
  • Health & Medical
  • Fitness & Activity
  • Arts & Entertainment
  • Nightlife & Bars
    Browse all businesses in Sherman Oaks, CA, 91423

    Tour This Condo

    TUESDAY

    16

    DEC

    WEDNESDAY

    17

    DEC

    THURSDAY

    18

    DEC

    FRIDAY

    19

    DEC

    SATURDAY

    20

    DEC

    SUNDAY

    21

    DEC

    MONDAY

    22

    DEC

    Schedule A Tour
    Ryan Case, Licensed Realtor & Team Lead

    Ryan Case

    Licensed Realtor & Team Lead

    213-449-4909 Contact Ryan Case
    Listing provided by agent Monica Rodriguez Valencia BRE# 02166923 at Luxury Collective.

    Last Updated: 12 days ago

    Similar Condos For Sale

    For Sale

    $ 599,999

    2 beds, 2 baths, 936 sq.ft.

    4859 Coldwater Canyon Avenue #12A ...
    View All 97 Condos