15014 Magnolia Boulevard #1

Sherman Oaks, CA 91403

$ 860,000

Price

3

Beds

2.5

Baths

1,818 Sq. Ft.

$473 / Sq. Ft.

317 Days On Market

Favorite

Share

Listed By Desiree Zuckerman (DRE# 01292971) at Rodeo Realty and Benn Zuckerman (DRE# 01917204) at Rodeo Realty (818-262-5648).

Have You Been Pre-Qualified? Start Now

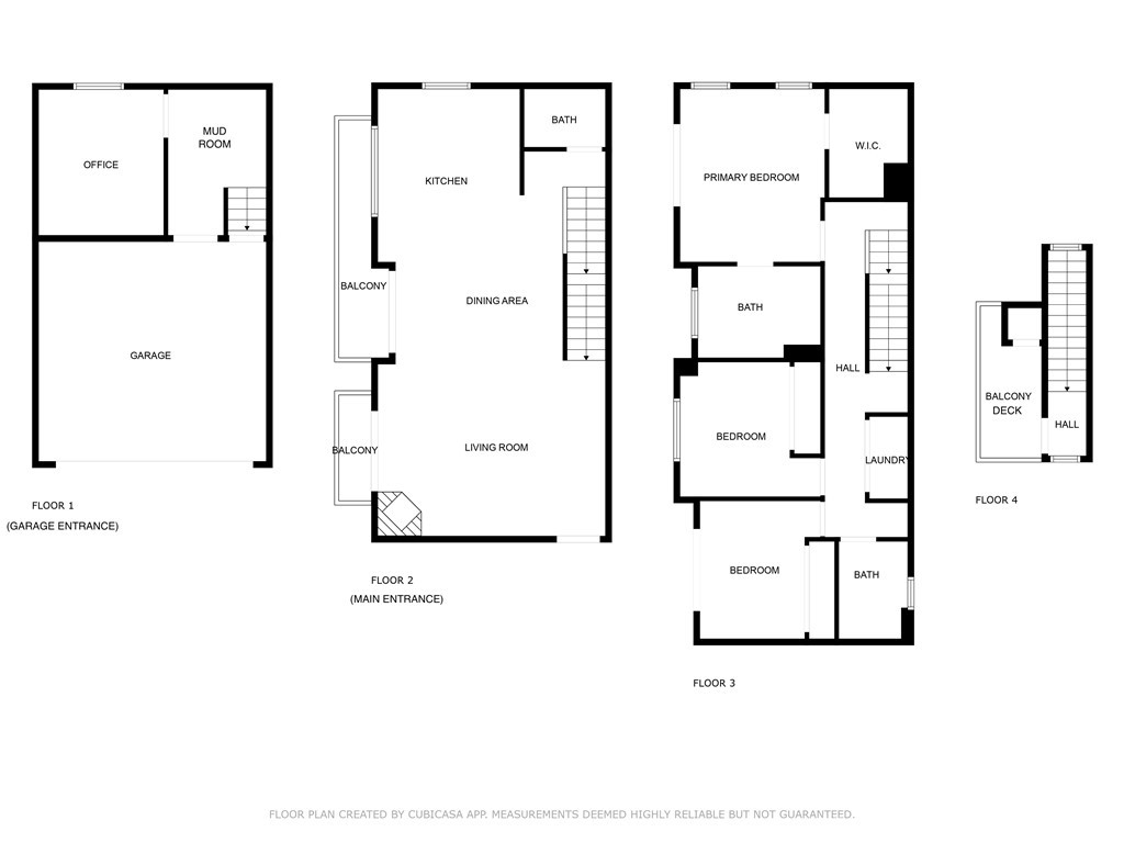
Incredible opportunity to own a 2005 constructed townhouse-style condo located in prime Sherman Oaks boasting 3 bedrooms + separate office, 2.5 baths, privately gated parking with 2-car attached garage with direct access, plus a very low HOA of only $365/month. This quiet building lined by the street’s beautiful namesake Magnolia trees has only 12 units and features a gated front entrance with newly installed Amazon Ring access controlled callbox for guests and packages for ultimate security and peace of mind. Step inside the largest model in the complex to find a bright open floor plan featuring high ceilings and large picture windows throughout. The living room features fireplace, sliding glass door that opens to a balcony deck, and wide plank wood flooring. The spacious dining room has access to a separate, larger balcony deck perfect for an outdoor BBQ. The kitchen opens directly to both living spaces and has expansive granite countertops ideal for food prep with separate breakfast bar seating, stainless fridge, 5-burner range with built-in overhead microwave, and dishwasher. The main level also has a powder bathroom for guests. Upstairs you will find three bedrooms including the primary, featuring large walk-in closet with built-ins, private balcony deck, and en-suite bathroom with dual sinks, granite counters, and oversized bathtub with shower. The second and third bedrooms each have built-in closets and one of the rooms has its own balcony deck. These two bedrooms share a hall bathroom with tub and shower. The laundry area is conveniently located on the same floor as the bedrooms and has great built-in storage. The lower level has 2-car finished garage with storage racks and direct access to the home’s mud room with storage, plus there is a separate bonus room ideal for office/gym/etc. There is also an upper rooftop deck with synthetic lawn great for pets which overlooks stunning mountain and city light vistas. Per seller: new HVAC system (2024), Level 2 EV charging outlet, and the HOA fees also cover water, sewer, and trash costs. Situated one mile from the Sherman Oaks Galleria and Ventura Boulevard shops and restaurants, quick access to the freeways, and zoned for Kester Elementary magnet school.

Show More
Property Type Condominium
Lot Size 13,511 sq. ft.
Year Built 2005
MLS # SR25041235
Listing Type Closed
Heating Central
Cooling Central Air
Laundry Gas Dryer Hookup, Inside, Washer Hookup

Last Updated: 294 days ago

Payment Calculator

40% Complete (success)
80% Complete (danger)
20% Complete
80% Complete (danger)
60% Complete (warning)
Principal and Interest
Property Taxes
Homeowners' Insurance
HOA Dues
Mortgage Insurance
Image Calculator Icon Customize Calculations | Compare Mortgage Rates

Property Details for: 15014 Magnolia Boulevard #1

Interior Features

Bathroom Information
  • 2 full baths, 1 half bath
Laundry Information
  • Gas Dryer Hookup
  • Inside
  • Washer Hookup
Fireplace Information
  • Living Room
  • Electric
Interior Features
  • Balcony
  • Built-in Features
  • Ceiling Fan(s)
  • High Ceilings
  • Living Room Balcony
  • Open Floorplan
  • Recessed Lighting
  • Storage
Heating & Cooling
  • Central Air
  • Central

Parking / Garage, Multi-Unit Information, Location Details

Interior Information
  • Balcony
  • Built-in Features
  • Ceiling Fan(s)
  • High Ceilings
  • Living Room Balcony
  • Open Floorplan
  • Recessed Lighting
  • Storage

Exterior Features

Property / Lot Details

Property Features
  • City Lights
  • Mountain(s)
  • Panoramic
Lot Information
  • Lot Size (Sq. Ft) 13,511
Property Information
  • Attached
  • Tax Parcel Number: 2263004040

Nearby Businesses

  • Grocery Stores
  • Drug Stores
  • Coffee Shops
  • Restaurants
  • Health & Medical
  • Fitness & Activity
  • Arts & Entertainment
  • Nightlife & Bars
    Browse all businesses in Sherman Oaks, CA, 91403

    Tour This Condo

    SATURDAY

    7

    FEB

    SUNDAY

    8

    FEB

    MONDAY

    9

    FEB

    TUESDAY

    10

    FEB

    WEDNESDAY

    11

    FEB

    THURSDAY

    12

    FEB

    FRIDAY

    13

    FEB

    Schedule A Tour
    Ryan Case, Licensed Realtor & Team Lead

    Ryan Case

    Licensed Realtor & Team Lead

    213-449-4909 Contact Ryan Case