14347 Albers Street #206

Sherman Oaks, CA 91401

$ 585,000

Price

2

Beds

2

Baths

1,216 Sq. Ft.

$481 / Sq. Ft.

63 Days On Market

Favorite

Share

Chandler Park Village Building

Have You Been Pre-Qualified? Start Now

Listing provided by agent Oren Mordkowitz BRE# 01246402 at Pinnacle Estate Properties, Inc..

Last Updated: 30 days ago

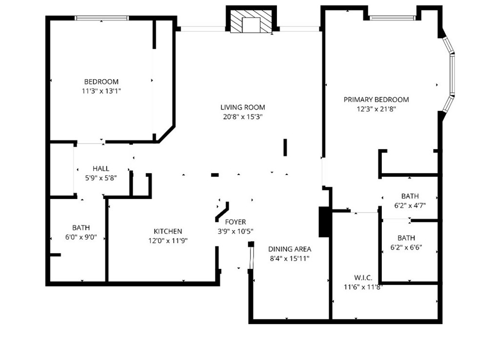
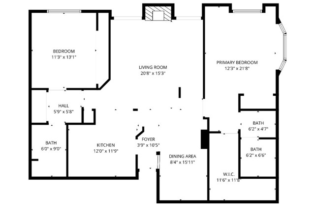
Look no further! This stunning residence in Chandler Park Village is ideally situated on a peaceful cul-de-sac street within the community’s most sought-after building. Bathed in natural light, this desirable corner unit offers beautiful views of mature trees and lush landscaping. Step inside to find spacious, open-concept living areas that include a formal dining space and an expansive living room anchored around its cozy fireplace, with direct access to a serene private balcony. The cook's kitchen features stainless steel appliances and a casual dining area — perfect for everyday living and entertaining. The well-designed layout includes two bedrooms located on opposite sides of the home, providing privacy and comfort. The expansive primary suite boasts a picturesque bay window, dressing area, enormous walk-in closet plus an additional wardrobe closet, and a spa-inspired bath with a makeup vanity and an oval soaking tub. Additional highlights include a full-size in-unit laundry including W&D, recently updated vinyl flooring, new carpet, new paint, designer updates, gated tandem parking, and private storage space. Enjoy the resort-style community amenities such as multiple pools and spas, a BBQ area, and fitness center. Located just moments from premier dining, shopping, entertainment, and major freeways — this is a rare opportunity to call Chandler Park Village home!

Show More
Property Type Condominium
Year Built 1989
MLS # SR25236701
Listing Type Closed
Heating Central
Cooling Central Air
Pool Association
Laundry Dryer Included, Inside, Washer Included
Parking Garage Faces Front
Gated Community Yes

Payment Calculator

40% Complete (success)
80% Complete (danger)
20% Complete
80% Complete (danger)
60% Complete (warning)
Principal and Interest
Property Taxes
Homeowners' Insurance
HOA Dues
Mortgage Insurance
Image Calculator Icon Customize Calculations | Compare Mortgage Rates

Property Details for: 14347 Albers Street #206

Interior Features

Bathroom Information
  • 2 full baths
Laundry Information
  • Dryer Included
  • Inside
  • Washer Included
Fireplace Information
  • Living Room
Interior Features
  • Recessed Lighting
Heating & Cooling
  • Central Air
  • Central

Parking / Garage, Multi-Unit Information, Location Details

Interior Information
  • Recessed Lighting
Parking Information
  • Garage Faces Front
Community Features
  • Units in Complex (Total) 214

Exterior Features

Pool & Spa Information
  • Association
  • Association
Building Information
  • Total Floors: 3

Property / Lot Details

Property Features
  • Trees/Woods
Lot Information
Property Information
  • Attached
  • Tax Parcel Number: 2245008094

Recently Sold Homes Near 14347 Albers Street #206

Nearby Businesses

  • Grocery Stores
  • Drug Stores
  • Coffee Shops
  • Restaurants
  • Health & Medical
  • Fitness & Activity
  • Arts & Entertainment
  • Nightlife & Bars
    Browse all businesses in Sherman Oaks, CA, 91401

    Tour This Condo

    SUNDAY

    18

    JAN

    MONDAY

    19

    JAN

    TUESDAY

    20

    JAN

    WEDNESDAY

    21

    JAN

    THURSDAY

    22

    JAN

    FRIDAY

    23

    JAN

    SATURDAY

    24

    JAN

    Schedule A Tour
    Ryan Case, Licensed Realtor & Team Lead

    Ryan Case

    Licensed Realtor & Team Lead

    213-449-4909 Contact Ryan Case
    Listing provided by agent Oren Mordkowitz BRE# 01246402 at Pinnacle Estate Properties, Inc..

    Last Updated: 30 days ago

    Similar Condos For Sale

    For Sale

    $ 565,000

    2 beds, 2 baths, 1,172 sq.ft.

    5420 Sylmar Avenue #105 ...
    View All 87 Condos